A small bedroom can be really hard to decorate, many times because you don’t know where to first put your furniture. This is why space planning is so important. When starting ANY decorating project, it’s extremely important to take measurements of the space first, so you can efficiently space plan. One of my most popular posts to date is all about how to measure spaces. In the post, you’ll get step-by-step instructions on how to easily take measurements.
In this post, you’re gonna see my process behind space planning a small bedroom, along with the decorative solutions to this tiny space.
Want to know my method for decorating a room and need support throughout the process? Join my online decorating workshop.
So, after I measure a space, the space planning begins. I’m gonna walk you through space planning a small bedroom project I worked on in the past.
Here are before photos:

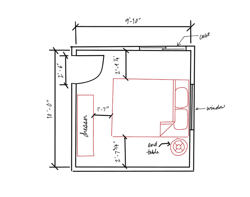
As you can see, this is a VERY small bedroom. There’s not a lot of space for any other furniture besides the bed and a dresser. Right now, there’s a Queen bed with a storage headboard, a painted dresser, and a small chest of drawers that match the headboard. We could save so much space by switching to a Full bed, but for my client, a Queen bed was necessary.
The current headboard is at least 10″ deep, taking up valuable space in the room, so I suggested that we get another. My client was open to changing out all the furniture, but preferred a dresser over a chest of drawers. She was also hoping for a mirror and a chair.
So, I took my measurements and came up with four different ways I could make this space work.
Current layout:

With the current layout, the space isn’t maximized well. There’s space between the bed and window that isn’t being used and the right side of the right set of drawers are hard to get into.
Below are four different options (I sometimes call them furniture plans) that I came up with:
Space Plan Option 1:
Bed in same location – remove large headboard

Cons:
- Bed in the corner. Can’t access both sides.
- Not much room for a chair.
- Dresser drawers still have little clearance. Still hard to access clothing.
- Bottom right corner isn’t very easy to get to.
- Can’t hang a mirror in front of the dresser (unless you want it in front of the window).
This option could work. I kept the bed in the same location, just removed the headboard, which frees up the space between the window and bed. This option lets me center the dresser on the window. There is over one foot of clearance between the dresser and bed to open up the drawers.
If you notice, in this option I’ve added a small, round bedside table so that a lamp could be placed on top. It’s close to the door, but there is still enough room to open the door all the way.
Space Plan Option 2:
Bed against wall – dresser centered at window

Cons:
- Not much room for a chair.
- Bed in the corner.
In this layout, I’ve rotated the bed along the same two walls that they were on before. This option provides a lot more clearance between the bed and dresser.
Again, the dresser is centered at the window, giving much needed space in front of the closet to access clothes. In this layout, a bedside table is able to perfectly fit next to the bed. Notice I used a small round one, but you can also go with a larger nightstand with drawers (or shelves) for extra storage.
If I would take the dresser off center and push it closer to the wall by the table, we could fit a small chair by the closet.
Space Plan Option 3:
Bed at window

Cons:
- No space for chair.
- Bed in front of the window.
- No open space. Room may feel a bit stuffy.
- Still not a lot of clearance for dresser drawers.
This option is very different from the first two. The bed is now centered at the window, facing you as you walk in the door. The bed can now be accessed from both sides. It’s not a lot of walk-through space, though, and would probably be a hassle getting to the other side.
Having the dresser on this wall, opposed to in front of the window, gives us wall space to hang a mirror, and/or shelving for more storage. We couldn’t do this above the dresser in either of the other two layouts.
Space Plan Option 4
Bed across from closet

Cons:
- Not enough clearance around furniture.
- Can’t fit in a chair.
This layout is actually my favorite. The bed is on the wall opposite the closet. A bedside table can fit on the side of the bed by the window, and the dresser can still fit on the wall opposite the window. Floating shelves and a mirror can be added above the dresser, to complete a beautiful vignette for getting pretty (or handsome) in the morning.
[Tweet “Space planning a small bedroom #interiordesign #decor”]
Space Planning Tips for Small Bedrooms:
- After taking measurements of your space and furniture, make note of existing furniture that will stay and additional furniture that needs to be added.
- Brainstorm and sketch different layouts of furniture and keep in mind that many pieces come in different sizes, i.e.: desks, tables, ottomans, beds.
- Allow for at least a bed, dresser (or chest of drawers), chair, and set of bedside tables to provide major functions of a bedroom.
- Think of unconventional places to place furniture to maximize space. For example, if you need to fit a desk in the bedroom, but the space is tiny, try placing your desk next to your bed and having it work double duty as your bedside table.
- Furniture must have ample clearance between it and other furniture, walls, windows, and doors. Find what’s comfortable to you, but you don’t want drawers bumping into other furniture when opened.
- Doors should be able to open all the way, and not be constricted by furniture or other items in a room.
- For maximum comfortability, you should allow for, at minimum, 12″ on the least used side of a bed, and at least 22″ on the other side.
- 22″ is a good clearance for major circulation path (ex: from room door to bed).
[Tweet “Space planning tips for small rooms #decor #interiordesign”]
I hope getting a peek into my space planning thinking process helps you out with your own small bedroom. If you need help with space planning a troublesome room, visit my services page. Sign up for my newsletter for updates on new blog posts.
This project was my space planning package, so I didn’t do any actual decorating for this client, only the 4 space planning options you saw in this post. Click here to see a mock design board for this room.
Want to know my method for decorating a room and need support throughout the process? Join my online decorating workshop.
What layout would you choose for this space? I’d love to know. Leave me a comment below!





Love this post! My bedroom is shared with my “office” and is a tiny space so I plan on using these tips:)
I’m glad you find these tips useful, Jamie!! Thanks for popping over!
Whitney
Hi I’m Wendy.. Do you think it’s okay to put a dresser with mirror in front of a window?
Hi Wendy! Sorry for the late response. I don’t like putting anything in front of a window unless it’s absolutely necessary. Is there anyway to detach the mirror from the dresser and maybe put a floor mirror or wall mirror on the wall next to the window?
Do they need the end table? I would get rid of the end table and push the bed over a little more so there is more room to open the dressers and use the dresser as an end table put a lamp on that. Don’t mind me though I am no decorator on any skill level lol.
That’s actually a good idea, are you talking about option 4? The problem is that she doesn’t want the bed too close to a corner and she really wants an end table, since she doesn’t have any right now.
Whitney
How much space is needed to open up your dresser drawers if standing in front of it
In my opinion, you need at least 2′ at minimum for opening up your dresser drawers.
Option 4 provides the most space. Yes, that headboard is a space waster. Looks good!
Thanks, Kirsten!
Wow, trying to figure these things out stress me out LOL But I do love your diagrams!
Lol, thanks Kristen! Let me know if you need any help on your next project!
Whitney
Hi Whitney, having looked at the four options you posted, may I make a suggestion. I would get rid of the dresser, and rather place a shelf below the mirror. since there is a closet, I’m assuming the room doesn’t necessarily need the drawers.
That’s a good suggestion! My client really wants the dresser since it has been handed down from her grandmother. She doesn’t know how old it it, but it means a lot to her. She painted it herself (it still needs some work), so she wants to make sure it’s part of the design. Also, the closet is rather small, and since she shares the room with her husband, some sort of drawers are definitely needed in the room to maximize storage.
Whitney
What can I say? You did an amazing amount of work went into this post, and you have done more work than I ever dreamed of doing. We have recently had to maximize space in our small bedrooms, and I was amazed at what some simple changes did. I doubt I would go to all this work because I am not much of an artist, and there weren’t a lot of options, but I’ve got to hand it to you!
Thanks Ruth! I really appreciate the comments, how sweet! I work hard on my space planning layouts for clients, because creating a new space plan can make the biggest impact in a space. I also have a lot of fun figuring out the different options to present to clients.
Whitney
Reading your post makes me feel like I’m in HGTV and that old Designer’s Challenge show. Love your layouts. I liked Option 1 and 4. Since the space is small, I assume extra storage space is important. 4 is my favorite, with a space that small, I can’t see adding seating. Personally I would feel cramped to lounge about the space (not in bed). The bookcases and shelves would be a good add and a large mirror might make the space look larger.
Thanks for the lovely comment, Scarlett! I definitely pride myself on trying to find the best options for a client’s small space issue! It’s fun, too!
Whitney
We have one room in particular that just doesn’t work no matter how many ways I try the furniture. Great post – I have some encouragement to keep at it till I get it just right for our needs.
Keep at it! If you stay motivated, you will get it right eventually! I offer space planning services if you’d like help with it!
Whitney
How about a over the bed shelf on wheels, no end table. I mean these big ones which go from one side over the other, so you can push it at the foot end and watch tv, pull it closer and use it as a desk to write on it or push it in the room to use as a table…
Is there an option to put hanging shelves inside the closet to get rid of that dresser or as mentioned above use the dresser as nightstand.
Sandra,
These are all amazing ideas! I haven’t seen the over the bed shelf in a long time, so I’ve forgotten about it. I’m definitely going to look for one to add as an option to my client. Thanks!
Whitney
I think I like option 3 best, though it does remove a lot of the open floor space. However, it seems to be the one that best fits the furniture needed in the small area.
Our bedroom has furniture that is way too large for it, so we have had to move things around a couple times to get the most out of the space we have.
Kecia,
Thanks for stopping by. Wouldn’t it be nice if we all bought our furniture after we had the home? That way we could make sure all our pieces would fit and we can space plan beforehand.
Whitney
Great plans! Very creative. When we are out serving, there are 8 of us in a motorhome…wish you could create more space in there for us!!! Many blessings to you.
Brian,
Thanks for stopping by! That’s a wonderful idea, I wish I had such a blessed oportunity to help you guys out with space in a shared motorhome. I want nothing more than our service men and women to be as comfortable as possible.
Whitney
I’m not good at visualizing spaces, but I love the layouts show how it will be with the furniture placed in. I think I like #4 the best.
Thanks for visiting Sarah! #4 is my favorite, too, and my client chose it as the layout that we will use for the room. Now, she and her husband can make better use of the space!
Whitney
Great choice. Better space utilization out of all the options (in my opinion).
Relaxed Thairapy
Thanks!
This is such a great way to plan a space! I love the pictures and wish I was that talented! In our house, we have to have access on both sides of the bed in our room, the hubbs would not have it any other way! Plus my ocd likes things centered and symmetrical as much as possible- we have a lot to resolve lol!
Michelle,
Thanks for dropping by! I completely understand, I have to have symmetry, too!! But, sometimes with small spaces we have to try and forget what our mind tells us, lol.
Whitney
You did a great job here. I think #4 is the best option, but knowing me I would change it all the time anyway. I love doing this kind of thing too-rearranging for space or convenience or just aesthetics. What a fun blog. 🙂
-TIff
Thanks so much, Tiffany!
I love rearranging, too. I typically get bored with a layout, so space planning is one of my favorite parts of designing a space!
Whitney
I think I like the bed under the window the best, but the last option works well too. I’m sure whatever you do will look great though 🙂
Thanks Erin! I usually don’t like the bed under the window (personally, since I’m scared to sleep under a window), but I do think that it works for my client.
Whitney
I like design number 4. It’s got the best “flow.” I’ve gotbtwo boys in a shared bedroom, and will use your tips to maximize their space. They could use the help!
Thanks Ryan,
Glad to inspire you for your own project. Let me know if you have any questions when you start!
Whitney
Wow, you have a great eye for functional layouts and trouble shooting. Thanks for sharing. I live in a small space, so this will be a great resource.
Thanks so much, Yolanda!
I really love Space Planning, it’s one of my favorite parts of the design process.
Whitney
I say option 4.
Here is a suggestion. (I hope I am not stepping on your toes.). Sometimes with small spaces, we need to think outside the box. If she wants to keep the dresser, she could try repurposing it for some other function…entertainment center, behind the sofa as a sofa table, at the entry for a landing zone for keys might be some alternative uses. By moving the large dresser out of the bedroom that frees up a lot of floor space in a small room.
Some storage ideas for the bedroom could be a smaller scale dresser. But, I actually like the idea of using drawers under the bed for the needed bedroom storage. They could even build up the bed using multiple, two drawer units stacked. They might be able to find a cabinet maker willing to construct these, or even retrofit something from Ikea.
Great job inspiring your clients!
Hey Wendy!
Thanks for the extra tips! I love to have other designers chime in!
Whitney
I love the 4th option best of all. I don’t like my bed stuck in the corner…but I’m OCD and always rearranging so id change it up every few months or maybe weeks…lol
Martini,
I can definitely dig that, I, too, have a need to “change”. LOL
Whitney
All of your recommendations are good common sense tips. No one wants to feel cramped in their personal space so I love the way you offered alternate layouts for the space. For me, I love to follow Feng Shui when arranging a room.
Pam,
I’ve been getting into Feng Shui and hope to be incorporating it into my blog and design business soon.
Whitney
This a great way to think of how to rearrange rooms. I don’t need it but my son’s family does. Two girls share a room. They are try to get one out of a crib but are not sure how to set up the room after that. I think some graph paper and drawings will really help them think it out. Thank you for the idea of drawing it out instead of just moving the furniture or talking about it.
Hey Peggy,
You can refer your son to this post for the extra help! Also, he may want to check out my post about how to measure spaces: https://whitneyjdecor.com/2013/08/how-to-measure-your-space-for-your-next-decorating-project/. Measuring spaces is a very important first step to optimize space when planning a decorating project. Thanks for dropping by!
Whitney
You definitely showed that there are many options to laying out a room. Making the best of small spaces is an art and you have many good ideas.
Hey Norma,
I completely agree with you about laying out a room being an art. It’s definitely an art to me. The funny thing is while I came up with these four options, another designer can come up with four more depending on his/her style, expertise, and budget. The sky is the limit when trying to maximize space. There’s space saving furniture and other solutions I could have used if the budget would have allowed it.
Whitney
I like that you showed the photos of the different design possibilities. I am a very visual person, so it made it a lot easier to see what you were talking about.
Thanks a lot. I get that a lot from people. They want to “see” it instead of someone trying to just explain it to them. I try to be that person that can show better than tell. I hope my clients receive it the way you have.
Whitney
Thank you for these tips Whitney! Living in a big city, it is truly important for me to utilize every square inch properly. This is a great post with great ideas!
Lynnette,
You need to get with me if you’re having space issues. I love working with small spaces. City living is awesome, but you have to give up space. 🙁
Whitney
i tried to have my boys share a room but htey just would not go to sleep, too young i guess lol. Thankfully we found something larger for just a small amount more money so we got really lucky. we also live in an apartment that is uber expensive compared to most places in the world… in Vancouver bc so i pay rent on this when i could be paying rent on a house somewhere i bet lol
Yes, sometimes it’s not feasible for two people to share a room. Understandable when they’re babies, so it was wise of you get a place that provided a comfortable space for your boys.
Whitney
I love all the awesome drawings you made for this! Usually I just draw it on paper and it is usually not accurate by any means. This is awesome though because of all the different ways you came up with placing everything! Thanks for sharing!
Britney,
I draw it out by hand all the time, the more important thing is to make sure that the furniture placed in the drawing is drawn to scale (at least a little bit) and having accurate measurements on your drawings. Take a look at my post about how to measure spaces: https://whitneyjdecor.com/2013/08/how-to-measure-your-space-for-your-next-decorating-project/. This post shows you how to hand draw these drawing step-by-step.
Whitney
I like #3. We are in the middle of rearranging my son’s room for his big boy bed while keeping the crib for baby #2 due in December. Only 1 configuration really works so far based on how big that darn corvette bed is my husband insists our toddler needs. Do men ever grow up 🙂 Your plans are making me think through it more. Great post.
Thanks so much, Rachel.
Please let me know if you need help!
Whitney
I may be moving into a smaller place soon, so your site will come in handy! I liked how you sketched and laid everything out on paper before hand – something I should really do in the future!
Hey Lindsey,
You should definitely plan to draw out your space before you actually start buying furniture. Let me know if you need help.
Whitney
Nice ideas! It’s always challenging to maximize space! I think we can all use some help like these! Thanks! 🙂
Thanks so much! I love to space plan small spaces.
Whitney
great post. My second bedroom is shared with my craft room. It is a daybed of sorts (well all the left of the daybed which is the trundle portion). since I do not have company (any company is my relatives and they stay with my parents when they come), so the bed can come down so I can have a full craft room, but that is subject for debate.
Hey Patrice,
A past was having a hard time removing her twin guest bed out of her office, but it was taking up too much space. She swore that she would never have any company so I convinced her to remove the bed and get really good full/queen air mattress that can be set in the “office” if guests happen to arrive one day. Her desk can easily swivel to a wall and out the way making enough room for the bed. You should think about it.
Whitney
These are all great ideas! I think I would choose #3 if it were my room. Regardless, I am generally not good at coming up with ideas like this, so I found the whole post fascinating! We’re moving in a couple of weeks, so I’ll have to check out more of your site for tips! 🙂
Emilee!
Thanks for stopping by and your lovely comment. I would love for you to drop by again. If you have any specific questions be sure to drop by my Ask Whitney J page and you can ask me anything!
Whitney
Now this is something I could have used a few months ago when I was buying furniture for my youngest son’s room. However, you still have some good spacing tips. His room seems to be the smallest in the house but I want him to have enough space in his room so he doesn’t feel the need to be all over the house making a “space” for himself. I am thinking about repositioning the bed, as your post suggested, to give the room the appearance of being bigger. I love the post.
Hey Ms. Nix!
Let me know if you need help with it. You may want to look into the loft beds. They work great in kids’ rooms and help maximize space in small bedrooms. I would love to help you find one that works for you!
Whitney
I also like the 4th layout the best. It gives the room a fresh new look and still has a good space to move around and dress in front of the closet. I enjoyed your clear explainations and diagrams.
Sandra,
Having a comfortable bedroom to dress and move around in is very important for me. I always try to maximize space in small bedrooms to give them “free space” as an option. Thanks for dropping by!
Whitney
I really need to do some space planning in my daughter’s room. Her set up has been pretty much the same for the last 3 years, but her needs as far as that space goes have changed and I think we need to change with them. I’d really like to incorporate a loft bed for her. I think she’d love that.
Jamie,
Hi, thanks for visiting! The loft bed sounds like a great idea. Please let me know if you need help. You should check out my post on how to measure rooms before you get started. https://whitneyjdecor.com/2013/08/how-to-measure-your-space-for-your-next-decorating-project/
Whitney
Interesting points! I always struggle with coming up with ways to maximize small spaces — the diagrams seem like a lot of work/measurements involved, but probably more effective in the long run. I’m curious, what tools did you use to map out/draw the furniture?
Ana,
It’s definitely more effective in the end. Just remember that you can use these same drawings/measurements in the future. I hand draw my plans first then use design software like Photoshop and Auto Cad. Sometimes I use Google Sketchup, too. You should check out my post about how to measure spaces: https://whitneyjdecor.com/2013/08/how-to-measure-your-space-for-your-next-decorating-project/. It gives step by step instructions and shows you how easy it is.
Whitney
Option 4 is basically how my room is set up. Working with small spaces makes rearranging difficult. Thanks for the tips!
Yes, space planning is definitely difficult in small spaces, but I love doing it. Space planning is one of my favorite parts of the design process.
Whitney
So, if you could come over and do my measurements and fix up my bedroom to be more efficient, that would be awesome. 😉
LOL! I would love to help!!! Where are you located? If you are outside of New Orleans, unfortunately I wouldn’t be able to come over but I can definitely look at your space and let you know some options you may take. Or, you can hire me for the E-Design of your bedroom. 🙂 Either way, shoot me an email at hello[at]whitneyjdecor[dot]com.
Whitney
I remember sharing a room with my sister growing up. Our room was small, which made it even worse. Have you seen the headboard decals available online. That might be another option for you to consider. Thanks so much for stopping by and commenting on my table. Hope you have a great weekend.
That’s a really good idea, Brandi! Thanks for stopping by, and congrats on the Apartment Therapy feature!
Whitney
I like the 4th option. Great tips! I look forward to reading additional posts!
I like the 4th option, too! Thanks for visiting, Stacey!
Whitney
For option 4 you could move bed further towards the wall and then move the end table to the other side then you have room for a chair and save space! The room will also look more roomy.
Just a thought!
take the doors off the closet & put the dresser in the closet. Also, get a cube of shelves from Ikea (Kallax?) and put on the wall where the dresser is. That’s what my wife & I did in our 10′ x 11′ bedroom and it works fine!
What if in a slightly rectangular room, door and window is on the same wall and there’s also an inbuilt cupboard, where should be a queen sized bed, chairs and a baby crib should be placed??